愛あるセレクトをしたいママのみかた

秋篠宮家 仮新居は10億円!建築概要書から見えた驚きの全貌

女性自身
秋篠宮家 仮新居は10億円!建築概要書から見えた驚きの全貌


2月7日、秋篠宮ご一家の「御仮寓所」の外観が公開された。秋篠宮邸が改修工事に入るため、ご一家は3年間この建物に仮住まいされる。

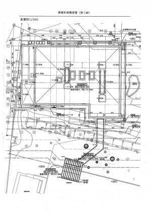
宮邸の隣に建設された御仮寓所は鉄筋コンクリート造り3階建て。延べ床面積は約1,378平方メートルで、建設費は約9億8千万円だ。本誌は赤坂御用地が所在する港区役所で、御仮寓所の「建築計画概要書」を入手。そこには、建物の概要がわかる見取り図もあった。

建築計画概要書を見て、ベテランの建築士はこう語る。

「建設費は坪単価に換算すると約235万円になります。
ホテルでも内装費を含めて200万円前後なので割高に思えますが、皇族方のお住まいですし、内装にもお金がかかっているのかもしれません。窓が極端に小さく、セキュリティを最優先した建物のようです。要塞のような外観で、あまりお住まいに適しているとは思えませんが……」

1階は応接室や執務室のある公室部分。2階と3階には事務室や厨房、そして秋篠宮家の居間や書斎、ご一家それぞれの部屋があるプライベート部分となっており、この床面積は523平方メートルだ。秋篠宮ご一家は2月10日、御仮寓所へと引っ越された。

もちろん眞子さまもお引っ越しされたのだが、そこは眞子さまにとって“住むはずではなかった家”だと言うのは皇室ジャーナリスト。

「御仮寓所の着工は’17年1月で、ご婚約内定報道があったのは同じ年の5月。宮内庁はこのころからお二人のご結婚後の新居として都心の2LDKや3LDKのマンションを探していました。
そして当初の予定では昨年の11月4日、眞子さまは小室さんと結婚式を挙げるはずだったのです。しかし小室家の金銭トラブルが発覚し、ご結婚は延期に。眞子さまがご家族と一緒に御仮寓所に住まわれることになったのは、まったくの想定外でした。御仮寓所にはご一家5方それぞれのお部屋があるそうですが眞子さまのお部屋は“急造”されたのでしょう」

皇室ジャーナリストは、眞子さまの複雑な胸中を慮る。

「お引っ越しの作業は秋篠宮ご夫妻のご指示で職員や引越し業者が行いました。もちろん眞子さまのお荷物もありますから、引っ越しの段取りについて紀子さまとお話しになることもあったそうです。ただ、秋篠宮ご夫妻と眞子さまの会話はそれ以上増えることはなく、ほとんど“無言の引っ越し”となったといいます」
約400万円の金銭トラブルによって小室さんとの結婚は延期となったが、御仮寓所の建設費は9.8億円。引越し費用や備品代も含めれば10億円を超える。
さらに秋篠宮邸の改修には33億円もの予算が計上されている。

「もちろん秋篠宮家が小室家の“借金”を肩代わりできるわけではありません。それでも眞子さまは、ご自身が10億円の新居にお住まいになりながら400万円をめぐるトラブルに苦慮する小室さんを助けられないことに、やるせないお気持ちを抱かれていることでしょう。緊張関係のままご家族と暮らす新居で、眞子さまは囚われているような孤独を感じられているに違いありません」(前出・皇室ジャーナリスト)

提供元の記事

提供:

女性自身

この記事のキーワード